Zaagmolen 17

5481 MN, Schijndel

Verkocht

€ 405.000,- k.k.

Kenmerken

Beschrijving

Foto's

Plattegrond(en)

Brochure

Overdracht

Koopprijs
€ 405.000,- k.k.
Status
Verkocht

Bouwvorm

Soort object
Woonhuis
Soort woning
Eengezinswoning
Type woning
Tussenwoning
Kwaliteit woning
Goed
Bouwjaar
1987
Bouwvorm
Bestaande bouw
Energieklasse
B

Indeling

Woonoppervlakte
120 m2
Perceel oppervlakte
128 m2
Inhoud
400 m3
Aantal kamers
5
Aantal slaapkamers
3
Aantal badkamers
2
Aantal verdiepingen
3

Buitenruimte

Tuin
Achtertuin, Voortuin
Type
Achtertuin
Oppervlakte
66 m2
Ligging hoofdtuin
Zuidwest
Achterom
Nee
Kwaliteit tuin
Normaal

Bergruimte

Geen bergruimte bekend

Garage en parkeren

Garage
Geen garage
Parkeer faciliteiten
Openbaar parkeren

Dak

Soort dak
Zadeldak

Voorzieningen

Voorzieningen

Overig

Permanente bewoning
Ja
Onderhoud binnen
Goed
Onderhoud buiten
Goed
Huidig gebruik
Woonruimte
Huidige bestemming
Woonruimte

Ben jij op zoek naar een ruime, recentelijk vernieuwde tussenwoning in een rustige woonwijk in Schijndel? Dan is Zaagmolen 17 precies wat je zoekt! Deze woning is in 2022 volledig opnieuw ingedeeld en biedt veel comfort, moderne voorzieningen en een ideale ligging.

INDELING:

Begane grond:
Bij binnenkomst in de hal valt meteen de hoogwaardige afwerking op. Op de vloer ligt een moderne, strakke visgraad pvc vloer welke doorloopt naar de woonkamer en keuken. De lichte woonkamer is royaal opgezet en biedt voldoende ruimte voor een gezellige zithoek en eethoek. Vanuit de woonkamer heb je direct toegang tot de zonnige achtertuin, die op het zuiden gelegen is.
De dichte keuken is aan de voorzijde gelegen en heeft een rechte opstelling met luxe greeploze kasten. Daarnaast is de keuken voorzien van moderne inbouwapparatuur, waaronder een inductiekookplaat, rvs afzuigkap, combi ovenmagnetron, koel-vriescombinatie, vaatwasser en Quooker. De keuken biedt voldoende opbergruimte en is praktisch ingedeeld.

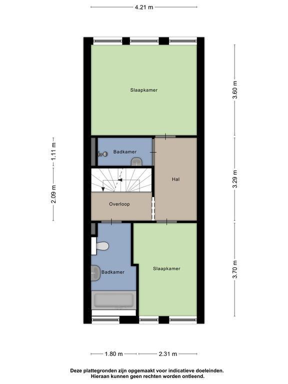
Eerste verdieping:
Middels de fraai gestoffeerde trap betreed je de overloop op de eerste verdieping welke leidt naar twee ruime slaapkamers. Beide slaapkamers zijn voorzien van hoogwaardig tapijt en de kamers bieden veel lichtinval door de grote ramen.
Op deze verdieping bevinden zich niet één maar maar-liefst twee badkamers! De eerste moderne, geheel betegelde badkamer is aan de voorzijde gelegen en beschikt over een ligbad, wastafel, toilet en designradiator. Deze luxe badkamer biedt alle comfort die je nodig hebt om heerlijk te ontspannen. De tweede geheel betegelde badkamer is voorzien van een royale douche met regendouche en wastafel. Je hoeft elkaar in deze woning niet in de weg te staan tijdens het spitsuur.

Tweede verdieping:
De tweede verdieping is bereikbaar via een vaste trap en biedt nog extra ruimte voor opslag op de ruime voorzolder én mogelijk werkplek. Hier bevindt zich ook de cv-ketel die zorgt voor verwarming en warm water in de woning.
Daarnaast is op de zolder nog een derde sfeervolle slaapkamer gelegen. Door het grote dakraam is ook deze kamer lekker licht en voor verschillende doeleinden ideaal.

Buitenruimte:
De woning beschikt over een heerlijke, onderhoudsvriendelijke achtertuin gelegen op het zuidwesten. Direct grenzend aan de woonkamer is een groot terras gelegen, dan een stuk gazon en achterin de tuin bevindt zich nog een sfeervolle overkapping met knusse loungeplek. Verder is er een vrijstaande berging aanwezig, ideaal voor het opbergen van spullen en tuingereedschap.
Parkeren kan eenvoudig in de buurt, waar voldoende openbare parkeerplaatsen beschikbaar zijn.

Kenmerken:

– Woonoppervlakte: 120 m²
– Perceeloppervlakte: 128 m²
– Inhoud: 400 m³
– Bouwjaar: 1987, opnieuw ingedeeld in 2022
– Cv-ketel: Remeha uit 2022 (eigendom)
– Moderne pvc vloer op de begane grond, hoogwaardig tapijt op de verdiepingen
– Twee luxe badkamers
– Zonnige achtertuin op het zuidwesten met berging
– Gelegen in een rustige woonwijk met voldoende parkeergelegenheid

Deze recent vernieuwde en moderne woning aan de Zaagmolen 17 in Schijndel biedt volop ruimte en comfort. Plan snel een bezichtiging en ontdek zelf het woonplezier van deze instapklare woning!

Geen brochure beschikbaar

Uw persoonlijke makelaar

René van de Laar

0413-472118 [email protected]
Uw persoonlijke makelaar

Inge Wijngaarden

0413-472118 [email protected]
Uw persoonlijke makelaar

Marij-Ellen Smits

06-53191515 [email protected]